Hertfordshire architectural drawings
Plans for extensions, lofts and new builds in Hertfordshire
WEDRAWPLANS prepare planning and technical drawings for house extensions, loft conversions, refurbishments, conversions and residential projects across Hertfordshire and nearby areas. Fixed fees with clear scope and fast communication.
- • House extensions, wrap around extensions and internal remodelling
- • Loft conversions including dormers and hip to gable designs
- • Refurbishments and internal layout reconfiguration
- • Planning drawings and building regulation packs
- • Covering St Albans, Watford, Hemel Hempstead, Welwyn Hatfield and more
- • Same day response on most enquiries
Free fixed fee quote
Tell us a little about your property and what you plan to build. We will reply with a clear fixed fee for your drawings.
Popular services in Hertfordshire
We provide full design and planning services for extensions, loft conversions and new build developments. Each service page explains what is included, how approvals work, and how to get a fixed quote.
Nearby borough pages
These are the boroughs that directly border Hertfordshire. If your property is close to the boundary, these local pages may also be relevant for your project.
Other London areas we also cover
These pages cover other parts of London that may still be useful if you are comparing services, moving area, or looking at similar project types elsewhere.
Architectural drawing services in Hertfordshire
WEDRAWPLANS provide drawing packages for extensions, loft conversions, refurbishments, internal alterations, residential conversions and small development schemes across Hertfordshire and nearby areas.
We regularly support projects around St Albans, Watford, Hemel Hempstead, Welwyn Garden City, Hatfield, Borehamwood, Potters Bar and surrounding towns.

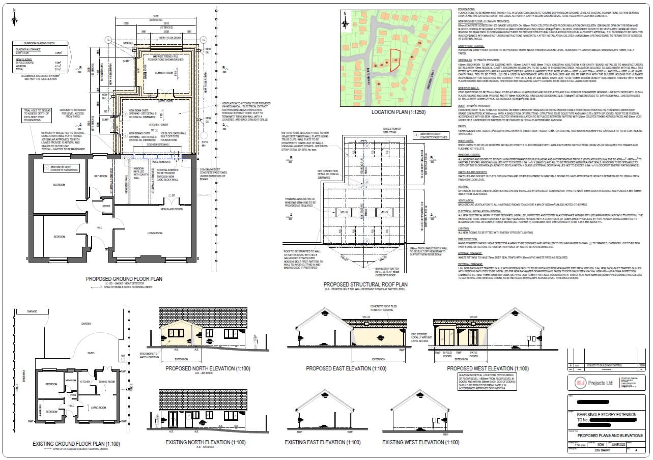
Technical drawings builders can price from
Clear plans, elevations, sections and notes, coordinated with structural design so builders and inspectors have what they need.
Hertfordshire areas we cover

Drawings across Hertfordshire, including:
- St Albans AL1
- Harpenden AL5
- Watford WD17
- Bushey WD23
- Hemel Hempstead HP1
- Berkhamsted HP4
- Welwyn Garden City AL7
- Hatfield AL10
- Borehamwood WD6
- Potters Bar EN6
- Cheshunt EN8
- Hoddesdon EN11
Popular projects in Hertfordshire
- Rear and side extensions
- Wrap around extensions
- Dormers and loft conversions
- Kitchen and open plan layouts
- Internal remodelling
- Garage conversions
- Garden rooms and studios
- Refurbishments
- Residential conversions
- Small new build schemes

Permitted development guidance in Hertfordshire
This is a simplified guide to common permitted development limits. Final confirmation depends on your house type, location and any local constraints such as conservation areas.
Rear extensions
- Up to 3 m deep on terrace houses
- Up to 4 m on semi detached houses
- Up to 6 to 8 m with Prior Approval
- Maximum 4 m high for single storey
Loft conversions
- Up to 40 to 50 cubic metres volume
- No extensions on the front roof slope
- Side windows obscure glazed and fixed
- External materials to be similar
Outbuildings
- Maximum 2.5 m high near boundaries
- Cannot be used as a separate dwelling
- Use must be incidental to the house
- Not more than 50 percent of garden area
Planning drawings for Hertfordshire
- Existing and proposed floor plans
- Existing and proposed elevations
- Roof plans and key sections
- Block plans and location plans
- Drainage and construction notes where needed
- Supporting information where required
Building regulation drawings for Hertfordshire
- Structural layouts and coordination
- Foundation and beam information
- Fire safety and escape routes
- Thermal build ups and insulation specs
- Ventilation and extract positions
- Drainage runs and manhole information
Local planning awareness for Hertfordshire projects
Many Hertfordshire areas include conservation zones, design guides and street scene expectations, especially around period homes and prominent road frontages. We shape each scheme to fit context and produce a clear drawing package that supports a smooth decision.
Frequently asked questions
What drawings do I need for an extension
Most projects start with existing and proposed plans and elevations. We confirm the right set once we review your address and scope.
How fast can you survey
In most cases we can arrange the initial measured survey within forty eight hours of instruction.
Do you help with planning submissions
Yes. We can prepare drawings and support the submission route, including responding to questions during review.
Can you coordinate structural design
Yes. We coordinate with structural engineers so beams and load paths are designed and shown clearly on the drawings.
Ready to start your project
Send your postcode and a short description. We review and reply with a fixed fee and recommended next steps.
