Tower Hamlets architectural drawings
Plans for extensions, lofts and conversions in Tower Hamlets
Local London designers • Fixed fee guaranteed • Council-ready drawings
We work across Tower Hamlets including Bethnal Green, Bow, Whitechapel, Mile End, Limehouse, Canary Wharf and the Isle of Dogs, helping homeowners improve layouts, extend where possible and prepare clear planning and technical drawing packages.
Typical Tower Hamlets projects include rear extensions to terraces, loft proposals where the roof form allows, internal remodelling to older London homes and flat layout upgrades where planning and building control coordination is important.
- • Rear and side return extension drawings where the property type allows
- • Loft conversion and roof alteration drawings for suitable houses
- • Flat reconfigurations, refurbishments and internal remodelling
- • Planning drawings and building regulation packs
- • Covering Bethnal Green, Bow, Whitechapel, Limehouse and more
- • Same day response on most enquiries

Free fixed fee quote
Tell us a little about your property and what you plan to build. We will reply with a clear fixed fee for your drawings.
Popular services in Tower Hamlets
We provide full design and planning services for extensions, loft conversions and new build developments. Each service page explains what is included, how approvals work, and how to get a fixed quote.
Nearby borough pages
These are the boroughs that directly border Tower Hamlets. If your property is close to the boundary, these local pages may also be relevant for your project.
Other London areas we also cover
These pages cover other parts of London that may still be useful if you are comparing services, moving area, or looking at similar project types elsewhere.
Architectural drawing services in Tower Hamlets
WEDRAWPLANS provide full drawing packages for extensions, loft conversions, internal alterations, refurbishments and flat layout projects across Tower Hamlets.
We work throughout Bethnal Green, Bow, Whitechapel, Mile End, Limehouse, Wapping, Poplar, Canary Wharf, Stepney, Spitalfields and the Isle of Dogs.

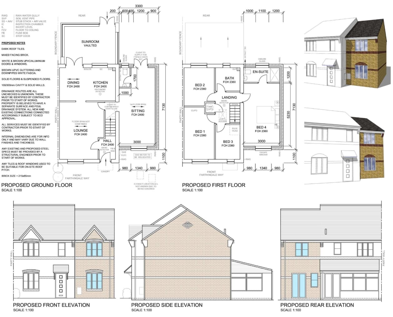
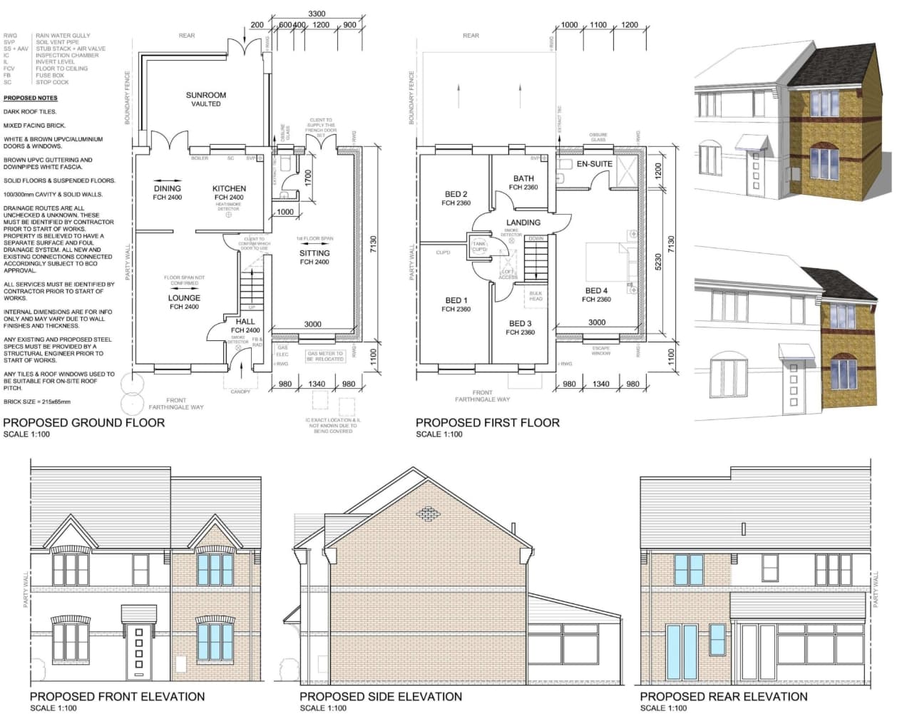
Technical drawings builders can price from
Clear floor plans, elevations, sections and notes, coordinated with structural design so builders and inspectors have what they need.
Tower Hamlets areas we cover

Drawings for the whole borough of Tower Hamlets, including:
- Bethnal Green
- Bow
- Mile End
- Whitechapel
- Stepney
- Spitalfields
- Limehouse
- Poplar
- Wapping
- Canary Wharf
- Isle of Dogs
- Shadwell
Popular projects in Tower Hamlets
- Rear extensions to terraces
- Side return extensions where suitable
- Loft conversions and dormers
- Roof extensions in appropriate settings
- Internal remodelling and knock throughs
- Flat layout reconfigurations
- Refurbishments and upgrade works
- Garden studios and outbuildings
- Change of use layout packages
- Small infill and new build plots

Permitted development limits in Tower Hamlets
This is a simplified guide to common permitted development limits. Final confirmation depends on your house type, whether the property is a flat, local conservation constraints, Article 4 directions and any listed building issues.
Rear extensions
- Up to 3 m deep on terrace houses
- Up to 4 m on semi detached houses
- Up to 6 to 8 m with Prior Approval
- Maximum 4 m high for single storey
Loft conversions
- Up to 40 to 50 cubic metres volume
- No extensions on the front roof slope
- Side windows obscure glazed and fixed
- External materials to be similar
Outbuildings
- Maximum 2.5 m high near boundaries
- Cannot be used as a separate dwelling
- Use must be incidental to the house
- Not more than 50 percent of garden area
Planning drawings for Tower Hamlets
- Existing and proposed floor plans
- Existing and proposed elevations
- Roof plans and key sections
- Block plans and location plans
- Drainage and construction notes
- Design and access or heritage statements where needed
Building regulation drawings for Tower Hamlets
- Structural layouts and coordination
- Foundation and beam information
- Fire safety and escape routes
- Thermal build ups and insulation specs
- Ventilation and extract positions
- Drainage runs and manhole information
Local planning knowledge for Tower Hamlets projects
Tower Hamlets includes conservation areas, dense urban streets, varied housing stock, heritage sensitivities and many flats where permitted development rights are more limited. We shape each scheme carefully so the drawings match local context and approval chances are as strong as possible.
Frequently asked questions
Do I need planning permission for a rear extension in Tower Hamlets
Not always. Some rear extensions in Tower Hamlets can fall under permitted development, but many properties are affected by conservation area controls, flat status, listed building constraints or local planning sensitivities. We check the address and advise the correct route.
Is Tower Hamlets strict with loft conversions and extensions
Tower Hamlets can be strict where properties sit in conservation areas, on prominent terraces or where changes affect the street scene. A well-drawn proposal with the right planning approach is especially important here.
How long does Tower Hamlets Council take to decide
Householder planning applications are typically around eight weeks after validation. Lawful Development Certificate timescales are often around six to eight weeks, depending on validation and workload.
Do you manage the full application to Tower Hamlets Council
Yes. We prepare drawings, complete the forms, upload the documents, submit the application to Tower Hamlets Council and deal with planning queries during the process.
Prefer to speak. Call 020 3654 8508
Ready to start your project
Send your postcode and a short description. We review and reply with a fixed fee and recommended next steps.
